Części zamienne do wzierników skręcanych wg DIN 11851 firmy Papenmeier (Lumiglas)






Wziernik skręcany wg DIN 11851 / Typ MV:
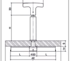
Wymiary wzierników i uszczelek:
Zestawienie materiałów uszczelek:


Zestawienie zakresu wytrzymałości materiałów uszczelek i szkieł:
Szkła wziernikowe - borosilicate glass DIN 7080 / +280°C:


Szkła wziernikowe - sodowo-krzemowe DIN 8902 / +150°C:


Szkła wziernikowe z otworem centralnym ø10,5 mm pod wycieraczkę
sodowo-krzemowe DIN 8902 / +150°C:


Szkła wziernikowe z otworem centralnym ø10,5 mm pod wycieraczkę
Borosilicate glass DIN 7080 / +280°C


Szkło wziernikowe z wycieraczką Lumiglas - Typ SW I:





